混凝土攪拌樓(站)是用來集中攪拌混凝土的聯合裝置,又稱混凝土預拌工廠。它是由供料、儲料、稱量、攪拌和控制等系統及結構部件組成,用以完成混凝土原材料(水泥、砂、石子等)的輸送、上料、儲料、配料、稱量、攪拌和出料等工作。混凝土攪拌樓(站)自動化程度高、生產率高,有利于混凝土生產的商品化等特點,所以常用于混凝土工程量大,施工周期長,施工地點集中的大中型建設施工工地。

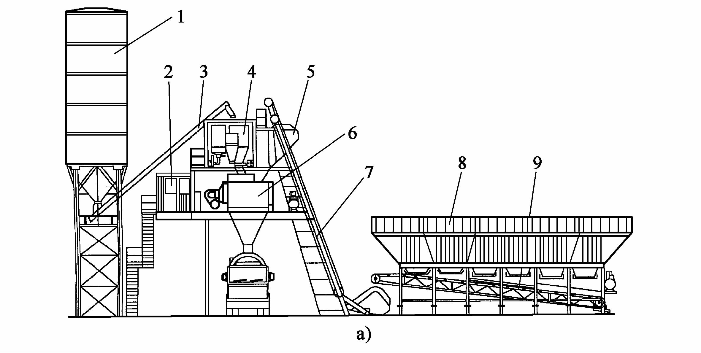
圖4-15 混凝土攪拌樓
1.混凝土攪拌樓分類及型號
按結構形式可分為固定式、裝拆式及移動式混凝土攪拌樓(站)。
按生產工藝流程可分為單階式和雙階式。單階式是指在生產工藝流程中集料經一次提升而完成全部生產過程;雙階式是指在生產工藝流程中集料經兩次或兩次以上提升而完成全部生產過程。
按作業形式可分為周期式和連續式混凝土攪拌樓(站)。
混凝土攪拌樓是一座自動化程度高、生產效率高的混凝土生產工廠,采用單階式生產工藝流程,整個生產過程用計算機控制。它要配備2~4臺攪拌設備和大型集料運輸設備,可同時攪拌多種混凝土。
混凝土攪拌站是一種裝拆式或移動式的大型攪拌設備,只需配備小型運輸設備,平面布置靈活,但效率和自動化程度較低,一般只安裝一臺攪拌機,適用于中小產量的混凝土工程。

圖4-16 混凝土攪拌樓(站)工藝流程圖
a.單階式;b.雙階式
I 運輸設備;II 料斗設備;III 稱量設備;IV 攪拌設備
表4-2 混凝土攪拌樓(站)的表示方法
|
機類
|
機型
|
特性
|
代號
|
代號含義
|
主參數
|
|
混
凝
攪
拌
樓
(站)
H
(混)
|
混凝土攪拌樓L(樓)
|
錐形反轉出料式(Z)
|
HLZ
|
錐形反轉出料混凝土攪拌樓
|
生產率
(m³/h)
|
|
錐形傾翻出料式(F)
|
HLF
|
錐形傾翻出料混凝土攪拌樓
|
|
蝸漿式(W)
|
HLW
|
蝸漿式混凝土攪拌樓
|
|
行星式(N)
|
HLN
|
行星式混凝土攪拌樓
|
|
單臥軸式(D)
|
HLD
|
單臥軸式混凝土攪拌樓
|
|
雙臥軸式(S)
|
HLS
|
雙臥軸式混凝土攪拌樓
|
|
混凝土攪拌站Z(站)
|
錐形反轉出料式(Z)
|
HZZ
|
錐形反轉出料混凝土攪拌站
|
|
錐形傾翻出料式(F)
|
HZF
|
錐形傾翻出料混凝土攪拌站
|
|
蝸漿式(W)
|
HZW
|
蝸漿式混凝土攪拌站
|
|
行星式(N)
|
HZX
|
行星式混凝土攪拌站
|
|
單臥軸式(D)
|
HZD
|
單臥軸式混凝土攪拌站
|
|
雙臥軸式(S)
|
HZS
|
雙臥軸式混凝土攪拌站
|
2.混凝土攪拌樓(站)的主要結構和工作原理
混凝土攪拌樓(站)主要由集料供儲系統、水泥供儲系統、配料系統、攪拌系統、控制系統及輔助系統組成。圖為混凝土攪拌樓結構和工藝流程圖、混凝土攪拌站結構和工藝流程圖。


圖4-17 混凝土攪拌樓結構和工藝流程圖
a.混凝土攪拌樓結構圖;b.工藝流程圖
1提升皮帶運輸機;2回轉分料器;3集料塔倉;4斗式垂直提升機;5水泥筒倉;6控制系統;7攪拌系統;8集料稱量斗


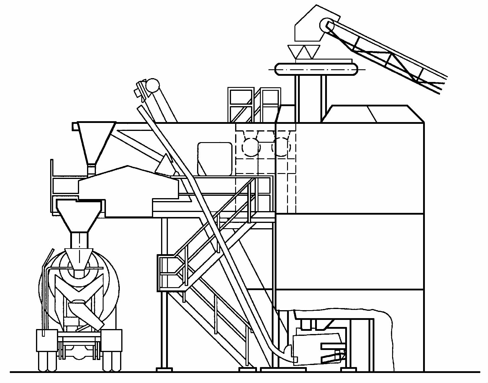
圖4-18 混凝土攪拌站結構和工藝流程圖
a.混凝土攪拌站結構圖;b.工藝流程圖
1水泥筒倉;2控制系統;3螺旋輸送機;4配料斗;5斗式提升機;6攪拌系統;7上料導軌;8集料倉;9皮帶輸送機(皮帶秤)
1)供儲系統
混凝土攪拌樓(站)的供儲系統包括了砂石集料、水泥、粉煤灰、水及添加劑的供給和儲存。供儲系統一般由運輸設備及儲料設備組成。砂石集料的運輸設備有皮帶運輸機、拉鏟、裝載機等;水泥的運輸設備有斗式提升機、螺旋輸送機、風動運輸設備等;而水及添加劑常用泵送。儲料設備是由儲料斗倉、卸料設備和一些其他附屬裝置組成。
a.攪拌樓集料供儲系統
攪拌樓的集料供儲系統由皮帶輸送機1、回轉分料器2和攪拌樓內的儲料塔倉3等組成。集料提升一次完成,集料提升設備采用提升皮帶運輸機,把地面上的集料送往攪拌樓內的儲料塔倉。

圖4-19 攪拌樓皮帶運輸機
1運輸帶;2型鋼支架;3回轉進料斗傳動裝置;4回轉分料斗;5擋板;6卸料滾筒;7驅動滾筒;8加料斗;9機房
b.攪拌站集料供儲系統
攪拌站的集料一般經兩次提升,一次將集料提升到地面上的儲料斗(倉),二次將集料提升到配料斗。根據儲料方式和提升設備的不同一次提升可分為四種:①拉鏟和星形料倉;②皮帶運輸機與儲斗式;③裝載機與儲斗式。

圖4-20 懸臂拉鏟與星形料倉
圖4-21 皮帶運輸機與儲斗式

圖4-22 裝載機和小容量鋼儲料倉
a)錐形鋼料倉;b)直列式鋼料箱
c.水泥供儲系統
水泥供儲系統包括水泥筒倉、水泥輸送設備和水泥儲料斗。水泥筒倉中的水泥通過輸送設備運送到水泥儲料斗,或直接運送到水泥稱量斗中。為了使水泥均勻地卸入稱量斗,采用給料機作為配料裝置,一般采用螺旋輸送機兼作配料和運輸用。通常的水泥供儲系統由一條與集料分開的獨立的密閉通道提升、稱量,單獨進入攪拌機內,從根本上改變了水泥飛揚現象。在水泥筒倉和儲料斗內有料位指示器以實現自動供料。
水泥從筒倉到儲料斗或稱量斗的輸送,大多采用機械輸送。散裝水泥車向水泥筒倉卸料采用氣力輸送。水泥筒倉上裝有一根輸送管道和吸塵器,利用散裝水泥車上的輸送泵即可把水泥箱送到筒倉內。當使用袋裝水泥時,需要一套袋裝水泥氣力抽吸裝置進行氣力輸送。

圖4-23水泥儲存筒倉
1.筒體;2.上部料位指示器;3.除塵裝置;4.倉頂;5.起吊環;
6.爬梯;7.下部料位指示器;8.進料管;9.支架;10.下圓錐

圖4-24 斗式提升機構造簡圖
1.驅動裝置;2.減速器;3.驅動滾筒;4.外罩;5.膠帶;
6.料斗;7.觀察孔;8.張緊裝置;9.張緊滾筒

圖4-25 螺旋輸送機簡圖
1.筒倉;2.螺旋葉片;3.懸索;4.套管;5.減速器;6.電動機
2)配料系統
配料系統由配料裝置、稱量裝置及控制部分組成。配料系統是對混凝土的各種組成材料進行配料稱量,用以控制各種拌和料的配比。
3)攪拌系統
自落式和強制式攪拌機均可作為攪拌樓(站)的攪拌機。攪拌樓通常配2~4臺攪拌機,因為一臺攪拌機不能充分發揮攪拌樓和其他設備的效率,而且由于攪拌機故障或檢修將使整座攪拌樓停產是很不經濟的。混凝土攪拌站通常只裝一臺攪拌機,但也有裝兩臺的。攪拌樓(站)所用的攪拌機攪拌容量大,工作效率高。其結構與普通攪拌機的攪拌部分類同。(圖4-26)
4)控制系統
混凝土攪拌樓(站)采用計算機控制系統,實現了對配合料的儲存、供應、計量、攪拌和卸料等生產工藝過程的自動控制。控制系統包括硬件系統(如可編程控制器、計算機等)和軟件系統(如管理程序和可編程控制器控制程序等)。

圖4-26 攪拌樓(站)常采用的大型攪拌機結構
a)雙臥軸強制式攪拌機;b)錐形傾翻出料攪拌機;c)立軸強制式攪拌機;d)行星強制式攪拌機

圖4-27 控制系統硬件構成
3.常見設備
1、傾翻出料混凝土攪拌樓
2、渦漿式混凝土攪拌樓
3、行星式混凝土攪拌樓
4、單臥軸式混凝土攪拌樓
5、雙臥軸式混凝土攪拌樓
6、連續式混凝土攪拌樓 |